À LES FINS
À vendre Appartement 3 pièces 66 m2
133 000 € *

Annonce éditée par l’agence Stéphane Plaza Immobilier Morteau

Partager sur les réseaux

  • Chambres 2 chambres
  • Pièces 3 pièces
  • Surface 66 m2

Appartement à LES FINS

Idéal investisseur ou premier achat

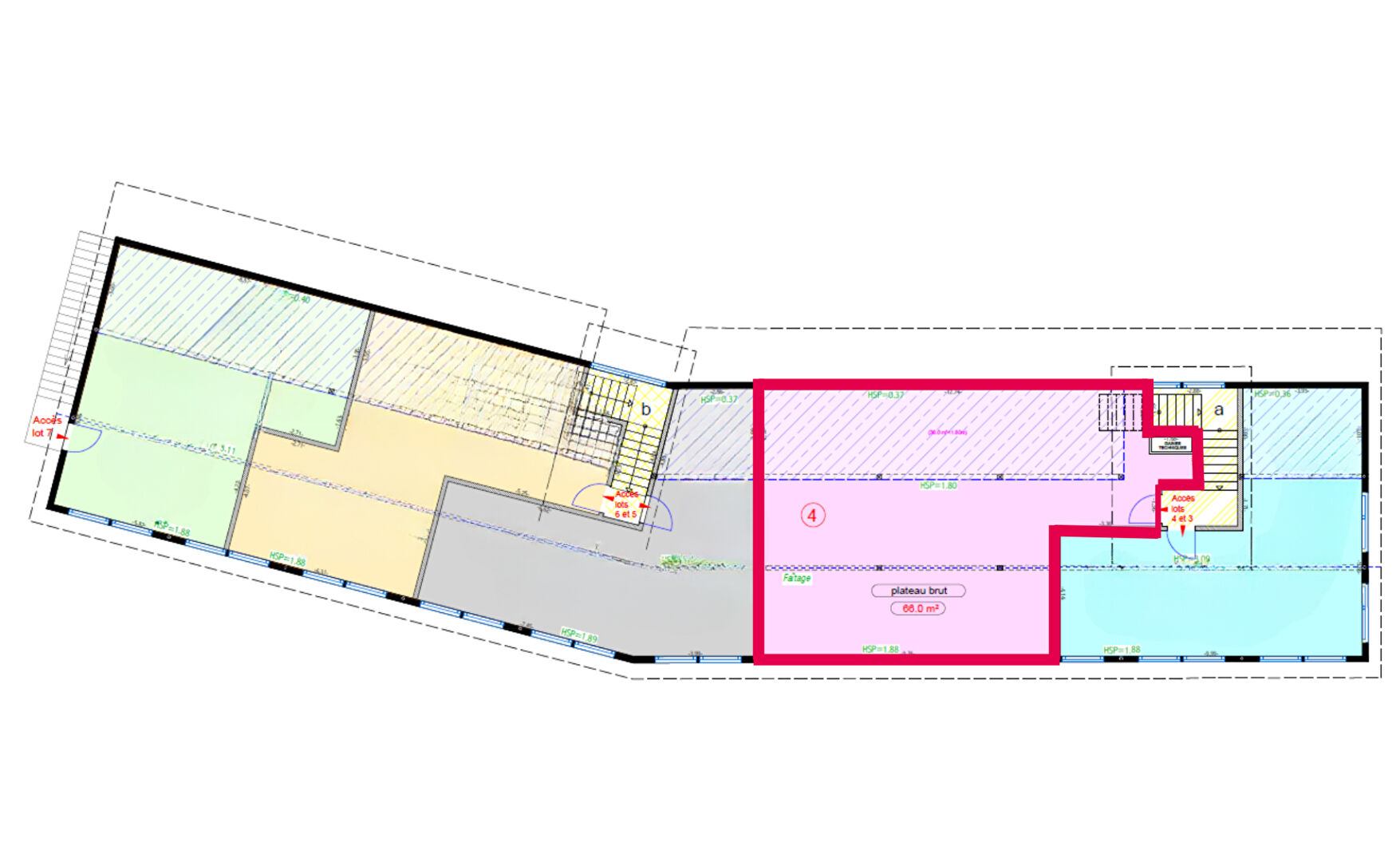
Situé au 1er étage d'un bâtiment comprenant 6 logements et une surface commerciale, découvrez ce plateau brut de 66 m² loi Carrez (95 m² au sol).

Entièrement à aménager, ce bien offre un fort potentiel et la possibilité de créer un appartement 2 chambres sur mesure, selon vos envies et votre budget.

Les atouts :

- Emplacement recherché, proche commerces
- À proximité de la frontière suisse
- Places de stationnement disponibles en sus

Idéal pour investissement locatif ou résidence principale

Plus d'informations et visites en agence.

* 133 000€ honoraires inclus | Prix hors honoraires : 133 000€ | Honoraires à la charge de l'acquéreur : 0,00% TTC
Hors frais notariés, de publicité et d’enregistrement.


caractéristiques

general
  • Prix de vente 133 000€
  • Type de bien Appartement
aspects financiers
  • Taxe Foncière 0€
surfaces
  • Loi Carrez Oui
  • Surface 66 m2
  • Surface loi Carrez 67 m2
  • Surface terrain 0 m2
interieur
  • Type Chauffage Sans
  • Mode Chauffage Aucun
  • Chambres 2
  • Nombre pièces 3
copropriete
  • Bien en copropriété Oui
  • Charges annuelles (ALUR) 0€
  • Nb Lots Copropriété .
  • Dont lots d'habitation 5
  • Procédures diligentées c/ syndicat de copropriété Absence de syndic
geolocalisation
  • Code postal 25500
  • Pays France
  • Dernier etage Oui
  • Etage X/X 1
  • Nombre étages 1
  • Rez de chaussee Non
  • Type de transaction A vendre
exterieur
  • Etat général Travaux à prévoir
  • Jardin Non
  • Neuf - Ancien Neuf
autres
  • Accès PMR Non
  • Ascenseur Non
  • Nombre garages/Box 1

votre contact

Marie Berger
Conseillère en immobilier
Cityscan Placeholder Desktop Cityscan Placeholder Mobile

Commerçant juridiquement et financièrement indépendant, franchisé du réseau Stéphane Plaza Immobilier.

Les photographies, images, plans et illustrations… n’ont pas de valeur contractuelle et sont fournis à titre indicatif.
Les informations relatives aux quartiers dans lesquels se situent les biens proposés sont fournies par un prestataire à partir de données agrégées depuis plusieurs bases de données dont les dates de mises à jour peuvent varier et sans garantie d’exhaustivité.