À ISSY LES MOULINEAUX
À vendre Appartement 1 pièce 32.14 m2
249 000 € *

Annonce éditée par l’agence Stéphane Plaza Immobilier Issy-les-Moulineaux

Partager sur les réseaux

  • Chambres 1 chambre
  • Salle de bain 1 salle d'eau
  • Pièces 1 pièce
  • Surface 32,14 m2
  • Caves 1 cave

Appartement à ISSY LES MOULINEAUX

MAIRIE D'ISSY / FRAIS DE NOTAIRE REDUITS / IDEAL PROFESSION LIBERALE

Votre agence STEPHANE PLAZA IMMOBILIER d'ISSY-LES-MOULINEAUX vous présente un STUDIO de 32 m2 en rez-de-chaussée au calme dans un immeuble NEUF de STANDING à deux minutes à pied de la place de la Mairie! FRAIS DE NOTAIRE REDUITS !
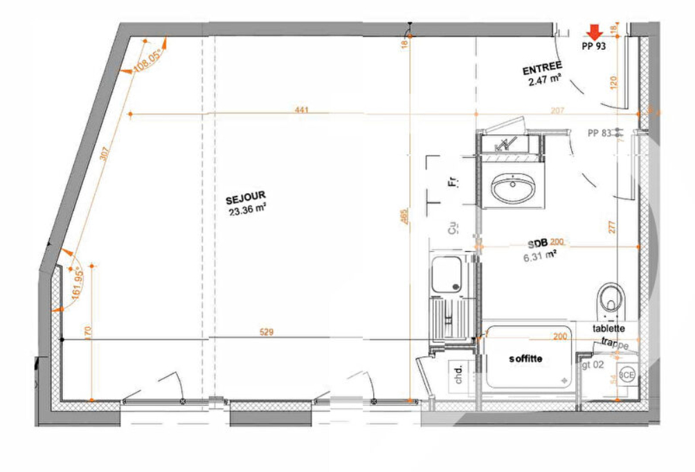
Venez découvrir cet appartement LUMINEUX et idéalement OPTIMISE comprenant une entrée, une pièce de vie avec cuisine ouverte, une salle d'eau avec grande douche à l'italienne et WC.
Ce bien est complété par une cave.
Idéal pour un PIED A TERRE parisien ou une PROFESSION LIBERALE à deux pas du centre, des transports et de toutes les commodités.
On visite?

* 249 000€ honoraires inclus | Prix hors honoraires : 249 000€ | Honoraires à la charge de l'acquéreur : 0,00% TTC
Hors frais notariés, de publicité et d’enregistrement.


caractéristiques

general
  • Prix de vente 249 000€
  • Type de bien Appartement
aspects financiers
  • Charges copropriété 96€
  • Taxe Foncière 0€
surfaces
  • Loi Carrez Oui
  • Surface 32, 14 m2
  • Surface loi Carrez 32, 14 m2
  • Surface séjour 23, 36 m2
  • Surface terrain 0 m2
interieur
  • Chambre RDC 1
  • Type Chauffage Individuel
  • Cuisine Ouverte
  • Méca. Chauffage Radiateur
  • Mode Chauffage Gaz
  • Chambres 1
  • Nombre pièces 1
  • Salle d'eau 1
  • WC 1
copropriete
  • Bien en copropriété Oui
  • Charges annuelles (ALUR) 1 160€
  • Nb Lots Copropriété 60
  • Dont lots d'habitation 21
  • Procédures diligentées c/ syndicat de copropriété Pas de procédure en cours
geolocalisation
  • Bus à proximité 1 min
  • Crèche à proximité 2
  • Ecole à proximité 2 min
  • Métro à proximité 2 min
  • Code postal 92130
  • Pays France
  • Dernier etage Non
  • Etage X/X 0
  • Nombre étages 5
  • Rez de chaussee Oui
  • Type de transaction A vendre
exterieur
  • Fenêtres PVC Double Vitrage
  • Neuf - Ancien Neuf
  • Standing Grand standing
  • Volets Roulants électriques
autres
  • Accès PMR Oui
  • Ascenseur Oui
  • Digicode Oui
  • Fibre Optique Oui
  • Interphone Oui
  • Cave(s) 1
  • Visiophone Oui

Ce qu'on aime

Le conseiller EMPLACEMENT IDEAL
Le vendeur QUALITE DES MATERIAUX

votre contact

Cityscan Placeholder Desktop Cityscan Placeholder Mobile

Commerçant juridiquement et financièrement indépendant, franchisé du réseau Stéphane Plaza Immobilier.

Les photographies, images, plans et illustrations… n’ont pas de valeur contractuelle et sont fournis à titre indicatif.
Les informations relatives aux quartiers dans lesquels se situent les biens proposés sont fournies par un prestataire à partir de données agrégées depuis plusieurs bases de données dont les dates de mises à jour peuvent varier et sans garantie d’exhaustivité.