À SAINT JUST
À vendre Appartement 2 pièces 46 m2
145 000 € *

Annonce éditée par l’agence Stéphane Plaza immobilier Bourg-en-Bresse

Partager sur les réseaux

  • Chambres 1 chambre
  • Pièces 2 pièces
  • Surface 46 m2
  • Parking Parking

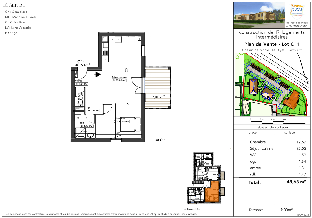
Appartement à SAINT JUST

Votre agence Stéphane Plaza Immobilier vous propose un superbe T2 de 46 m² !

L'entrée du logement vous conduit directement vers une pièce de vie de 25 m² orientée Est.
Elle se compose d'une cuisine aménagée/équipée ouverte sur le salon/séjour qui lui même se prolonge vers l'extérieur Côté Est sur une belle terrasse en bois de 9 m², assez large pour y recevoir plusieurs convives !

La partie nuit accueille une chambre de 13 m², une salle de bains de 4.4 m² avec baignoire, meuble vasque, sèche serviettes et emplacement pour machine à laver.
Enfin, un WC séparé complète l'ensemble.

L'agencement intérieur est donc très astucieux mais vous pouvez choisir de le personnaliser ! Vous pouvez enlever/ajouter des cloisons pour agrandir le séjour par exemple, remplacer la baignoire prévue par une douche, etc : tout est possible !

Côté technique, nous sommes sur un chauffage individuel gaz de ville. Les menuiseries sont en double-vitrage PVC et l'assainissement est collectif (tout à l'égout).

Pour le stationnement, vous bénéficiez d'une place de parking privative et d'un garage en option.

Au niveau des parties communes là aussi, le promoteur a fait le choix de la nature ! Des arbres rustiques tels aulnes, frênes, érables champêtre et charmes seront plantés ainsi des pins sylvestres. Des arbustes seront également présents sur la partie Nord avec des noisetiers communs, troènes, ainsi du chèvrefeuille grimpant sur les murs des garages.

Le bien est situé dans une copropriété de 65 lots dont 16 lots d'habitation seulement.
Statut provisoire du syndicat : Pas de procédure en cours
Les charges de copropriété seront très faibles (pas d'ascenseur, chauffage individuel).

Pourquoi acheter neuf ?
> personnalisation de votre logement à tous les niveaux : cloisons intérieures, carrelage, faïences, parquet, éléments salle de bains, cuisine? tout est à la carte !)
> frais de notaire réduits : 2,7% au lieu de 8% dans l'ancien
> vous faites également des économies sur votre prêt en devenant éligible au Prêt à Taux Zéro
> factures énergétiques ultra-réduites et confort thermique (classe B)
> nombreuses garanties propres au neuf

Concernant l'environnement, vous êtes ici à proximité immédiate de la crèche et de l'école (maternelle et primaire).
Les plus grands rejoindront facilement les collèges et lycées de Bourg-en-Bresse puisque nous sommes en zone Bus Rubis avec un arrêt de bus à 600m environ.

Saint-Just est une commune dynamique et attractive au charme discret, à mi-chemin entre pleine nature (forêt de Seillon et parc de loisirs de Bouvent à 5 minutes), commerces (grande surface à 5 minutes) et axes de transport (autoroute à 10 minutes, rocade à 2 minutes)

Livraison 1er semestre 2027

Contactez Stéphane Plaza Immobilier au 04.74.45.38.35
Référence annonce : A03
Les honoraires sont à la charge du vende

* Honoraires à la charge du vendeur
Hors frais notariés, de publicité et d’enregistrement.


caractéristiques

general
  • Prix de vente 145 000€
  • Type de bien Appartement
aspects financiers
  • Taxe Foncière 0€
surfaces
  • Loi Carrez Oui
  • Surface 46 m2
  • Surface loi Carrez 81 m2
  • Surface Jardin Privatif 0 m2
  • Surface séjour 37 m2
  • Surface terrain 0 m2
  • Surface terrasse 29 m2
interieur
  • Type Chauffage Individuel
  • Cheminée Pas de conduit
  • Etat intérieur Excellent
  • Exposition Séjour SUD OUEST
  • Méca. Chauffage Radiateur
  • Mode Chauffage Gaz de ville
  • Chambres 1
  • Chambres de service 0
  • Nombre niveaux 1
  • Nombre pièces 2
  • Salle de bain 1
  • Salle d'eau 0
  • WC 1
copropriete
  • Bien en copropriété Oui
  • Charges annuelles (ALUR) 780€
  • Nb Lots Copropriété 65
  • Dont lots d'habitation 16
  • Procédures diligentées c/ syndicat de copropriété Pas de procédure en cours
geolocalisation
  • Bus à proximité 0 min
  • Crèche à proximité 1
  • Ecole à proximité 1 min
  • Gare à proximité 10 min
  • Code postal 01250
  • Pays France
  • Dernier etage Oui
  • Etage X/X 1
  • Exposition Est-Ouest
  • Nombre étages 1
  • Rez de chaussee Non
  • Type de transaction A vendre
exterieur
  • Etat général Excellent
  • Fenêtres PVC Double Vitrage
  • Isolation Par le toit et les murs
  • Neuf - Ancien Neuf
  • Standing Bon
  • Volets Bois
autres
  • Accès PMR Oui
  • Ascenseur Non
  • Gardien Non
  • Grenier Non
  • Nombre balcons 0
  • Cave(s) 0
  • Nombre garages/Box 1
  • Nombre places parking 1
  • Nombre de terrasses 1
  • Piscine Non
  • Portail électrique Non
  • Sous-sol Non
  • Type de Stationnement Extérieur, GarageSimple
  • Véranda Non
description programme
  • Date de livraison 2 024
  • Nombre de lots 16
  • Type de résidence Résidence Principale

votre contact

Roman MARION
Directeur
Cityscan Placeholder Desktop Cityscan Placeholder Mobile

Commerçant juridiquement et financièrement indépendant, franchisé du réseau Stéphane Plaza Immobilier.

Les photographies, images, plans et illustrations… n’ont pas de valeur contractuelle et sont fournis à titre indicatif.
Les informations relatives aux quartiers dans lesquels se situent les biens proposés sont fournies par un prestataire à partir de données agrégées depuis plusieurs bases de données dont les dates de mises à jour peuvent varier et sans garantie d’exhaustivité.